西側面とキャノピー

2017年12月1日起工。

南正面

2018年7月24日完工予定

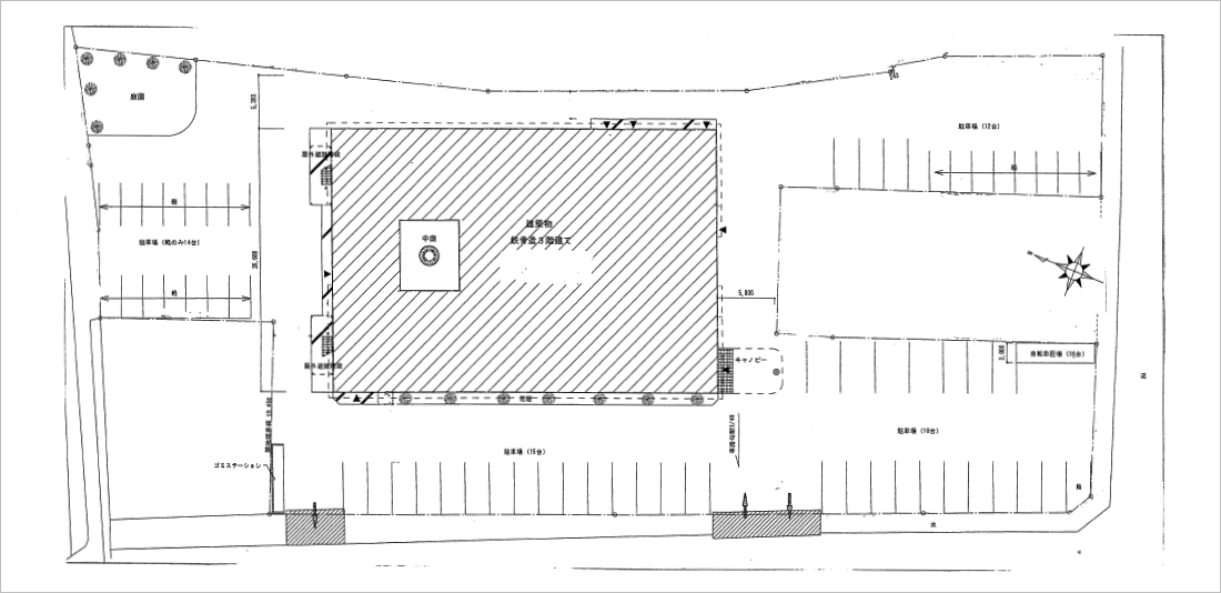
建物配置図

駐車場80台、駐輪場15台